ЛАНДШАФТНЫЙ УГОЛОК В КОСМАКОВА

Проект ландшафтного дизайна участка 10 соток в деревне "Космакова".

О проекте

Изображение

О проекте

Площадь участка — 10 соток
Услуги — Проектирование архитектуры, Проектирование ландшафта
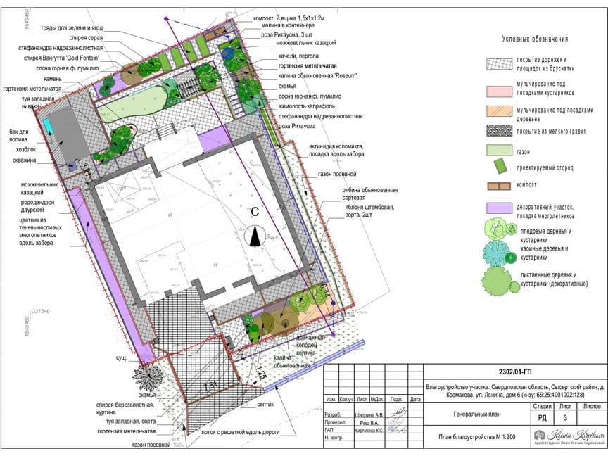
Наш проект участка тщательно продуман для максимального удобства наших клиентов. Мы создали открытую парковку на три машины и навес для авто, обеспечив удобный доступ и защиту транспорта. Рядом с террасой дома расположена зона для мангала с раковиной, казаном, барбекю и рабочей зоной, что позволяет наслаждаться кулинарными радостями на свежем воздухе. Сохранены существующие яблони и груши, добавлены грядки под клубнику и зелень, предусмотрена система автополива для удобства ухода за растениями.

Для украшения участка мы использовали спиреи, туи, можжевельник, ели и горную сосну, создавая уютную и природную атмосферу. Прямые дорожки из плитки обеспечивают удобное перемещение по территории, а забор в стиле дома гармонично завершает общий вид. Организована зона с камнями и газоном перед въездом, придающая благородный вид участку. Все элементы участка спроектированы так, чтобы обеспечить комфортное и приятное пребывание на свежем воздухе, соответствуя всем пожеланиям клиентов.

Видеообзор участка

Изображение

Вам понравился проект?

Запишитесь на бесплатную консультацию

Если вам нравятся наши проекты и близок наш подход, оставьте заявку или напишите в WhatsApp или Telegram. Мы письменно свяжемся с вами, сориентируем по стоимости проектирования и если нужно с согласуем удобное время для консультации.
Нажимая на кнопку, вы соглашаетесь с условиями обработки персональных данных и политикой конфиденциальности

КОНТАКТЫ

Время работы

Пн—Вс: 10:00—20:00

Адрес

г. Екатеринбург, Базовый пер., 37 (ИЦ БОМОНД)
Архитектор Ксения Кирпикова
Свяжитесь с нами любым удобным способом